【菊池市木柑子一棟売アパート】\オーナーチェンジ/【要予約】

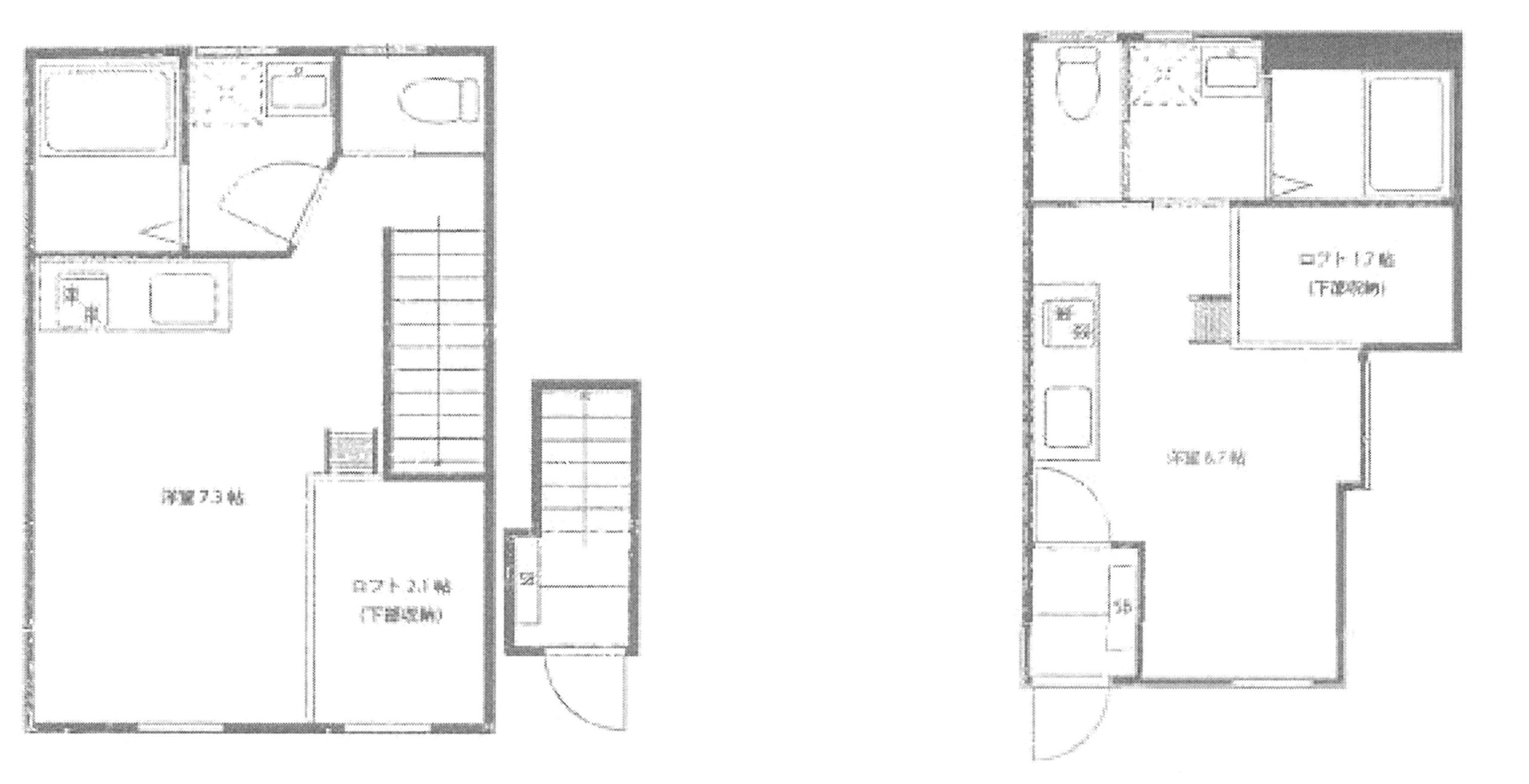
間取図

ー菊池市木柑子一棟売アパートー
築年数🏠2024年2月の木造アパート
✨12,800万円✨
オーナーチェンジです
アパート名:LION HEART 1階のお部屋


2階のお部屋


宅配ボックスもあります‼️

駐車場10台可能です🚗


🚩住所
菊池市木柑子1727-2
◆土地面積:公簿647.77㎡(195.94坪)
◆建物延面積:247.26㎡
◆都市計画:非線引区域
◆用途地域:無指定
◆引き渡し:相談
◆現況:賃貸中
◆容積率:200%
◆建ぺい率:70%
◆総戸数:10戸🏠
◆駐車場:10台🚗
内覧ご希望される方はこちらからお問い合わせください!
👇👇👇

☎096-284-5667
✉info@bon-life.jp
インスタグラムもやっています☺️🫶
情報も更新していますので、フォローお願いいたします✨